Importância da preparação de obra LSF
Preparação detalhada para a produção dos perfis metálicos em fábrica e montagem em canteiro de obra.
Importância da Preparação
A preparação adequada começa com um projeto detalhado e preciso. Antes mesmo de iniciar a montagem, é essencial ter um plano claro e completo em mãos. Um bom projeto em LSF considera todos os aspectos técnicos da montagem da estrutura.

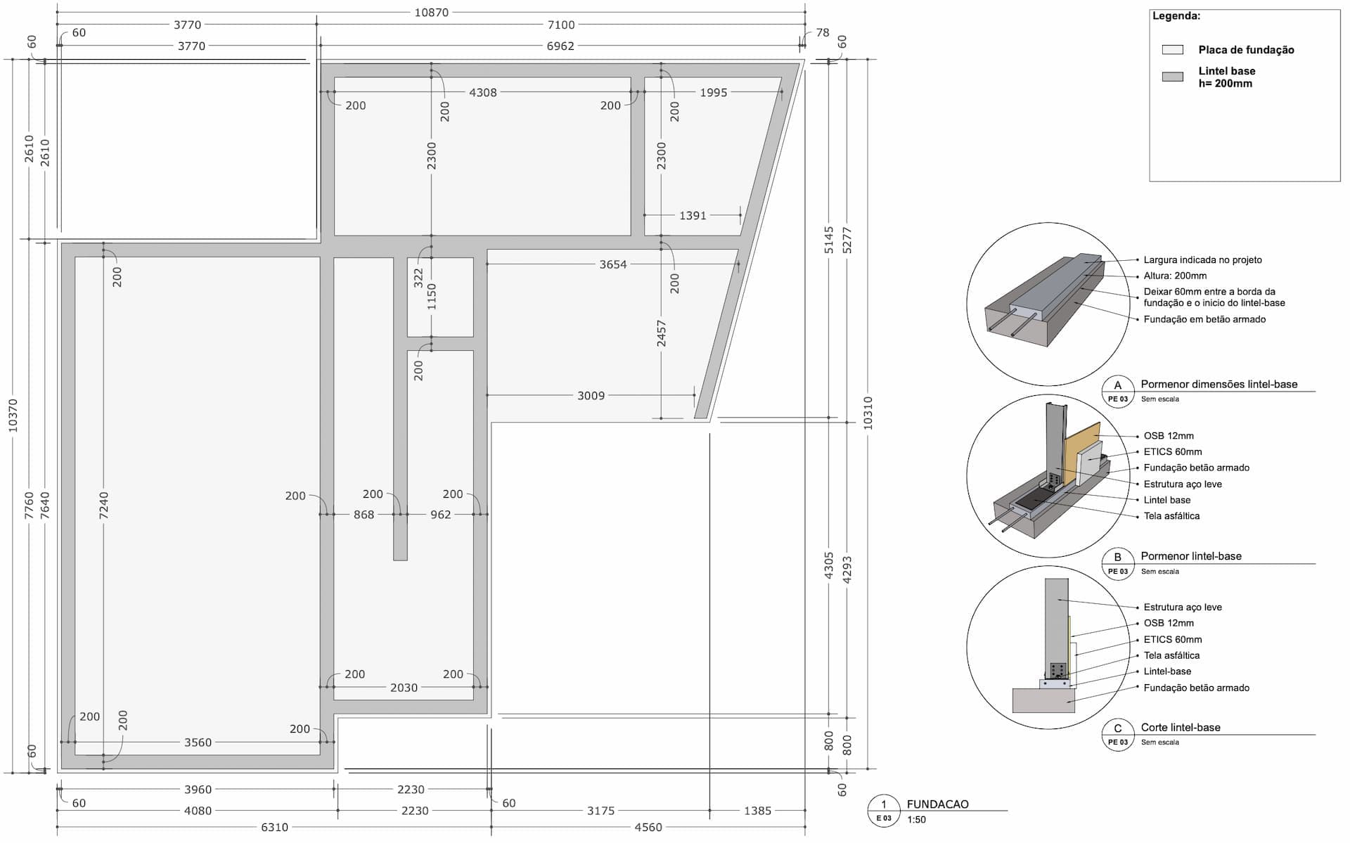
Preparação da Fundação
O processo de preparação começa com a elaboração da Fundação de acordo com o projeto de Arquitetura. Partimos da planta arquitectónica e preparamos a base de suporte aos painéis de parede em betão armado.

Na preparação da Fundação, consideramos o tipo de solo, a carga da estrutura de aço leve, a topografia e a legislação local. O nosso projeto é detalhado para os construtores poderem executar a obra com a maior rapidez e segurança.
Preparação das Paredes e Lajes




Nesta etapa projetamos todas as paredes (interiores e exteriores) da moradia e as lajes de piso. No projeto encontra a localização exata de cada painel com a indicação de todas as medidas e características.
Detalhes da escada em estruturas LSF
Tal como as paredes e lajes, as escadas são projetadas em perfis de aço galvanizado. São projetadas sob medida para oferecer mais flexibilidade e integram-se perfeitamente à estrutura LSF. Deste modo são a nossa escolha principal, com total liberdade para projetar de diversas formas.


Preparação do projeto LSF
Com o auxílio de software de modelagem 3D criamos uma representação virtual da estrutura em LSF (Light Steel Framing). Este modelo serve de base para os projetistas e construtores analisarem a estrutura de todos os ângulos. Permite avaliar o layout dos ambientes, analisar a distribuição dos componentes e prever problemas de projeto antes da sua montagem.
O projeto 3D permite a inclusão de todos os detalhes necessários na montagem em LSF da estrutura. Com uma representação detalhada, é possível garantir:
Posição exata dos perfis de aço
Localização dos pontos elétricos
Localização dos pontos hidráulicos
Evitar ambiguidades de fabricação
Identificar problemas de montagem
Medidas exatas dos espaços
Estamos à disposição para discutir as suas ideias e transformá-las em realidade, com foco na comunicação prévia, e conformidade com a legislação. Entre em contato para começar o seu novo projeto com a maior qualidade e eficiência.

